トップページ > サンハイツ八事ふじみA棟

販売物件情報

  • お気に入りリストを見る
  • 物件情報を印刷する
  • プリンタの設定で「背景を印刷する」と設定しないと「背景画像」が印刷されないことがあります。印刷の際には、必ず「背景を印刷する」設定にしてください。
中古マンション

サンハイツ八事ふじみA棟

この物件のお支払い例

物件価格
1,400万円
月々の支払い

頭金/ボーナス払い0円

42,000

※上記支払例の借入条件:金利0.69%、借入総額1,400万円、借入期間35年

中古+リフォームのお支払い例

プラン
頭 金 万円

月々のお支払い64,372

ボーナス払い0円

※上記支払例の借入条件:金利0.69%、借入総額2,145万円、借入期間35年

所在地・交通

所在地 名古屋市昭和区八事富士見1611 サンハイツ八事ふじみA棟305
最寄駅 名城線 八事 徒歩分数 8分
最寄バス停 徒歩分数
小学校校区 名古屋市立滝川小学校 中学校校区 名古屋市立川名中学校

※学校区は住所から自動判定したものであり、保証できる情報ではございません。正確な学校区はお問い合わせ下さい。

お問い合わせフォームはこちら

「人型アイコン」を地図上にドラッグすることで『Google Street View』に切り替わります。

※地図上の「対象地」は「」の場所を指しています。実際の場所ではない場合がございます。詳しくはお問い合わせください。

お問い合わせフォームはこちら

物件概要

価格 1,400万円(↓15.2%値下がり 種目 中古マンション
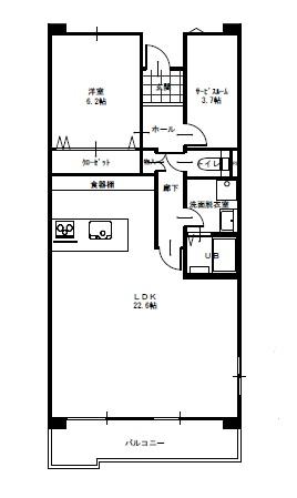
間取り 1SLDK 間取り内訳 LDK22.6畳×1室 洋6.2畳×1室 S3.7畳×1室
専有面積 69.18㎡ 建物構造 RC
バルコニー面積 7.32㎡ 向き
階数 8階建 所在階 3階
築年月(竣工月) 1987年11月 駐車場有無
駐車場料金 4,000円 総戸数
管理費 8,300円 積立金 14,330円
土地権利 所有権 管理形態/方式 管理会社に全部委託/巡回
用途地域 第二種住居地域
現況 空家 取引態様 媒介
建築確認番号

取引条件等

引渡し 即時

その他

設備 温水洗浄便座、浴室乾燥機、システムキッチン、カウンターキッチン、食器洗浄乾燥機、収納スペース、床下収納、トランクルーム、給湯、室内洗濯機置場、エレベーター、都市ガス、宅配BOX、CATV、モニタ付インターホン、[ガスキッチン][洗面所][火災警報器等設置済]
特徴 [5年以内に内装リフォーム]
諸条件・相談
情報登録日 2025年1月13日 情報更新予定日 2026年2月19日
物件番号 56752
最近見た物件

ページの先頭へ

東海店0120-946-411

名古屋店0120-071-331

お電話でのご来店予約もお待ちしております。

名古屋市・日進市・東郷町・豊明市・長久手市
・東海市・大府市エリア最大級の物件情報量!!

HPでは見られない店舗公開物件も多数ご用意!

店舗公開物件
6,132

いつでもどこでも希望の物件を探せる!

外出先で続きを見る!自宅でゆっくり探す!

一般公開
623
会員公開
818